新居 新生活

您所在的位置:首页 > 家装案例 > 最新案例 > 领航城二期129平米轻奢风格案例

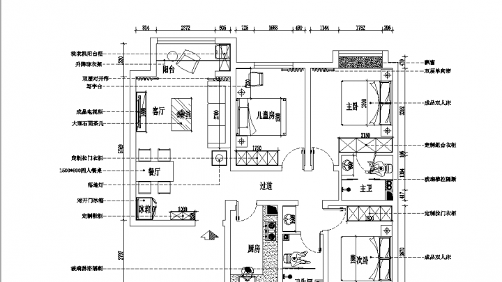
风格:轻奢风格

户型:三居

面积:129㎡

类型:最新案例

设计师:张天罡

工程造价:10.5万

设计师

张天罡

张天罡

查看TA的主页
设计经历: (1) 2000年加入河北唐山设计院会员。 (2) 2011年天津室内研讨社年度最佳创意金奖。 (3) 2011年中国京津冀室内设计大赛青年赛银奖。 (4) 2012年加入中国室内风水协会会员。 (5) 2013年作品入选第十二届亚太室内设计大赛作品选。 (6) 2014年获得中国室内设计黄金联赛优秀设计师奖。 (7) 2015年第十八届中国室内设计大奖赛优秀奖。 (8) 2016年加入河北室内设计研究员会员。 个人案例: 水电首郡、唐城壹零壹、兴盛大成、恒茂国际、梧桐大道、橡树湾、金隅乐府、 万达广场、金港国际、悦秀园、汇景轩、狮子城、首开国风 、京华佳苑、和平花园、香邑廊桥、新世界花园、枫景园、尚华城、四季花语、四季家园、红星国际、上善颐园、蓝波御景、瑞城观邑、枫景园、鸿坤理想澜湾、学府澜湾等
已有80人预约TA
在线咨询

免费申请户型规划

* 您的称呼
 请输入您的称呼
* 手机号码
 请输入您的手机号码

专业设计师1对1免费家装指导
已有502位业主申请了此服务

设计师人气榜

服务之星

为什么选择弘艺

您的装修预算 99469 元
  • 材料费:64452
  • 人工费:83188
  • 设计费:1124
  • 质检费:2662
  • 为了您的权益,您的隐私将被严格保密。

    装修计算器 目前已有505位业主获取了装修预算

    所在城市:
    房屋户型:
     
    * 您的手机:
     请输入您的手机号码
    房屋面积:
     请输入房屋面积