新居 新生活

您所在的位置:首页 > 家装案例 > 最新案例 > 领航城小区二期96平米简约风格

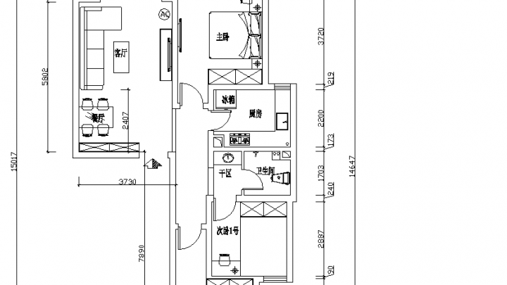
风格:现代简约风格

户型:三居

面积:96㎡

类型:最新案例

设计师:姚远

工程造价:6.5万

设计师

姚远

姚远

查看TA的主页
设计经历: 2013年获得“居然杯”黑龙江省室内设计大赛金奖; 2014年加入黑龙江省室内装饰协会会员; 2015年加入河北省室内装饰协会会员; 2015年亚太室内设计大奖赛优秀设计; 2016年度中国“营造空间”优秀设计作品银奖;
已有50人预约TA
在线咨询

免费申请户型规划

* 您的称呼
 请输入您的称呼
* 手机号码
 请输入您的手机号码

专业设计师1对1免费家装指导
已有502位业主申请了此服务

设计师人气榜

服务之星

为什么选择弘艺

您的装修预算 99469 元
  • 材料费:64452
  • 人工费:83188
  • 设计费:1124
  • 质检费:2662
  • 为了您的权益,您的隐私将被严格保密。

    装修计算器 目前已有505位业主获取了装修预算

    所在城市:
    房屋户型:
     
    * 您的手机:
     请输入您的手机号码
    房屋面积:
     请输入房屋面积